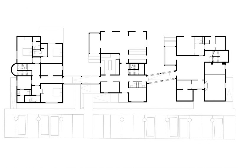
Adaptation of built structures for the purpose of a Boutique Hotel design
Projekt: Adaptacija postojećih objekata za potrebe butik hotela
Design: Adaptation of built structures for the purpose of a Boutique Hotel design
Lokacija: Kolašin, Crna Gora
Location: Kolašin, Montenegro
Klijent: Privatni investitor
Client: Private Client
Autor: Branislav Gregović
Author:
Godina projektovanja: 2019.
Year of design:
Godina realizacije: 2019.
Year of realization:













