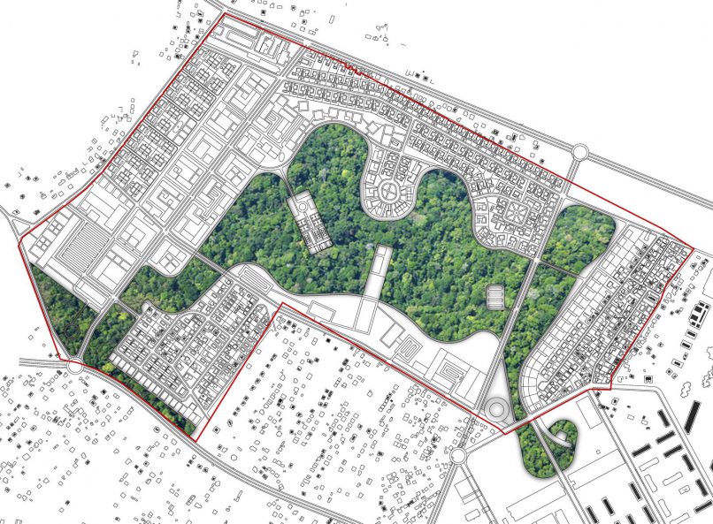
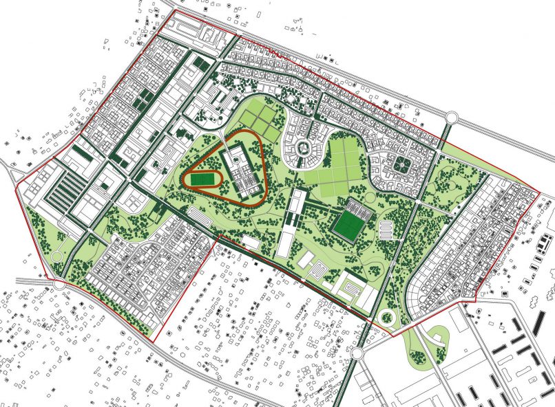
Sadine Masterplan
Projekt: Koncept uređenja Sadina
Design: Sadine Masterplan
Lokacija: Sadine, Podgorica, Crna Gora
Location: Sadine, Podgorica, Montenegro
Klijent: Glavni grad Podgorica
Client: Capital of Podgorica
Konkurs: –
Competition:
Autor: Branislav Gregović
Author:
Godina projektovanja: 2018.
Year of design:
Godina realizacije: –
Year of realization:






