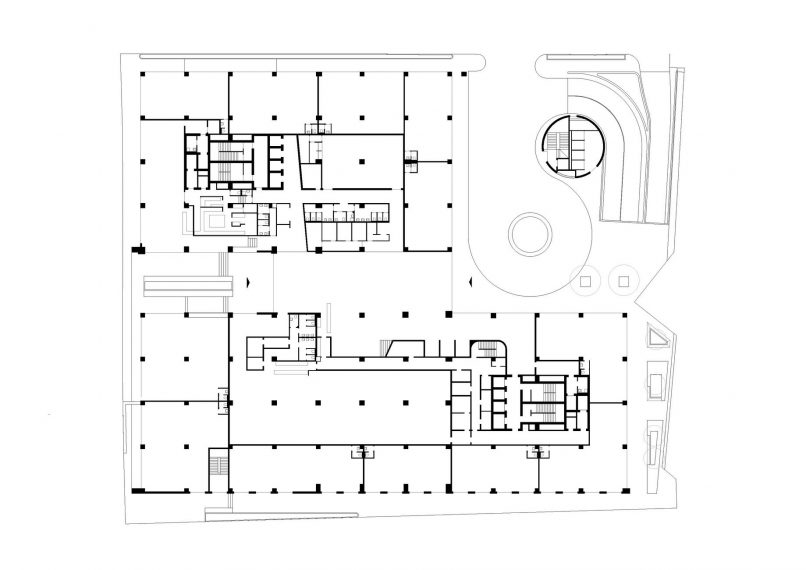
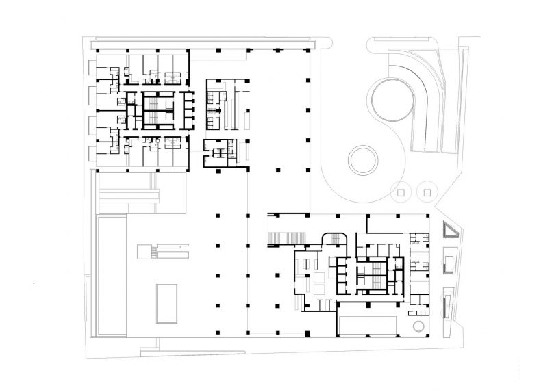
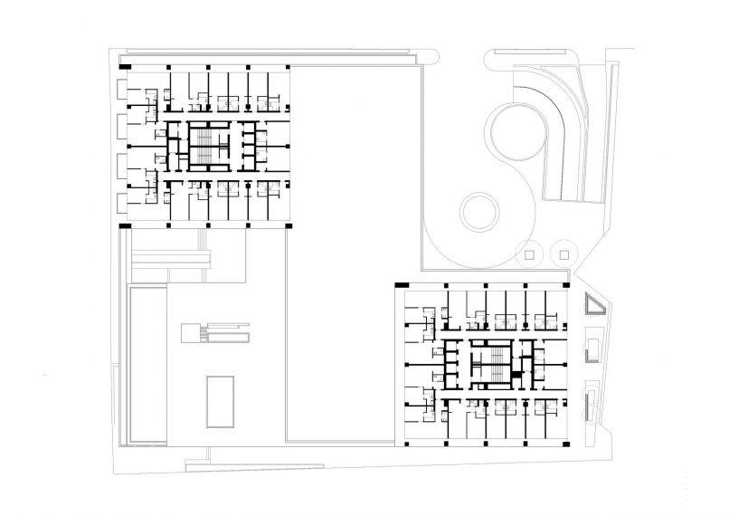
Hotel Safiro Budva
Projekt: Hotel Safiro
Design:
Lokacija: Budva, Crna Gora
Location: Budva, Montenegro
Klijent: Privatni investitor
Client: Private Client
Autor – član autorskog tima: Branislav Gregović
Author – team member:
Godina projektovanja: 2017.
Year of design:
Godina realizacije: –
Year of realization:















