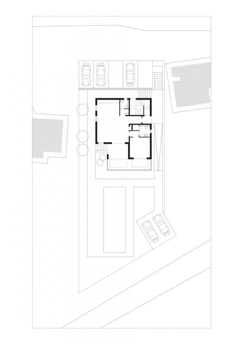
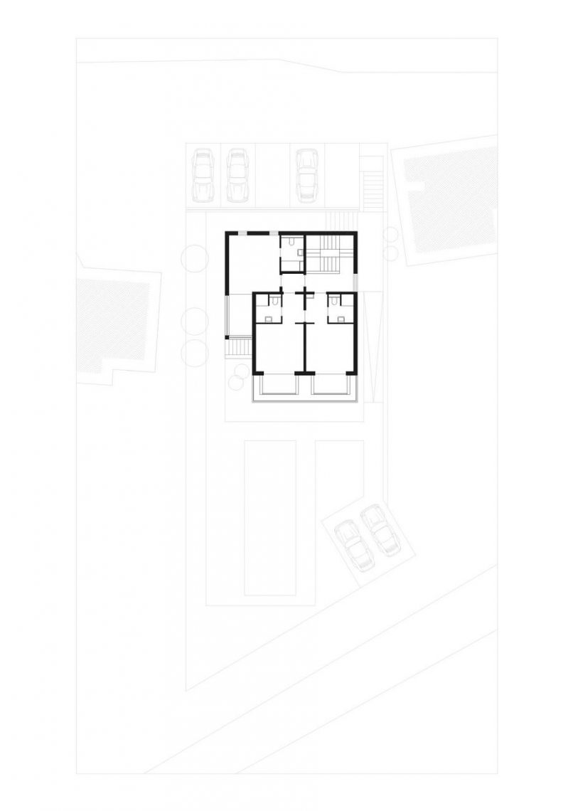
Reconstruction of a single family house Buljarica
Projekt: Rekonstrukcija porodične kuće
Design: Reconstruction of a single family house
Lokacija: Buljarica, Crna Gora
Location: Buljarica, Montenegro
Klijent: Privatni investitor
Client: Private Client
Autor – član autorskog tima: Branislav Gregović
Author – team member:
Godina projektovanja: 2017.
Year of design:
Godina realizacije: 2018.
Year of realization:











